该项目为三层结构大型独栋别墅,面对繁华的都市,背靠秀丽的山林,建筑及装饰定位豪华高贵。整栋别墅有一百六十多路灯光、七十多扇窗帘和二十多个排气扇,系统包括灯光、电动窗帘、气候监测、安全防范、背景音乐、可视对讲和空调控制等多个系统,控制点位多,分布范围广,若采用传统的控制方式,控制面板将不计其数,操作复杂繁琐,生活品质和装饰美观无疑将大打折扣。
项目需求分析
综合别墅的实际情况,业主表示需要使用一套操作简单、功能强大、简洁大方的智能化系统来进行控制,将大量的控制集中在少量的控制器上,并采用不同的控制方式,创造一个舒适、安全、便利、节能、环保的居住环境。
下面就以智能照明系统为例详细进行介绍:
整栋别墅共有一百六十多路灯光,不同区域的灯光数量不同,种类也不一样,希望通过智能照明系统能够化繁为简,实现不同的控制效果,充分发挥别墅的舒适性和优越性,将安全、节能和环保的理念贯穿于设计中。
考虑到别墅的私人区域和公共区域的不同需求,根据个人生活习惯达到人性化设计,对公共区域和私人空间的灯光控制做不同的处理,将控制做到最优化,不仅注重控制的整体性,在效果控制的基础上也能进行逐一控制,而且控制界面必须简单易懂,操作便捷,实现真正便捷和随心所欲。同时,针对别墅主人的品味爱好,产品的外观必须与别墅整体的装修风格融为一体,彰显高贵豪华。
系统特点及优势
针对别墅豪华高贵的装修风格和智能控制的需求,结合Bticino家居智能控制系统的控制方式的方便、灵活、易于修改、易于操作、易于维护等特点,采用Bticino智能家居控制系统Axolute豪华系列,实现智能照明控制的解决方案;
系统采用数字总线设计,采用2芯双绞线,所有设备通过2芯双绞线以星形或串形结构连接,连接不分极性,布线简单、方便,极大的节省了安装时间,减少了安装错误,降低了施工费用和后期维护费用;采用27VDC低电压供电方式,安全可靠,无电磁辐射;
信号传输速率很高,抗干扰能力强,可靠性高,距离可达5千米,经过扩展后传输距离更远,2芯双绞线可同时传输电源信号、控制信号、音频信号和视频信号,并可实现多通道传输,互不干扰;
所有控制器可随时更换位置,改变功能,改变控制负载对象,而无需更改线缆,并可自动修正设定,运行到最佳状态,节约能源,提高效率;
所有执行器均采用模块化设计,采用标准35mm导轨安装方式,安装体积小,可安装在照明箱中,无需定制特殊箱体,尤其适合于别墅安装空间小的环境;
系统稳定性、兼容性和扩展性强,所有设备均采用相同协议传输信号,任何一个设备均可独立工作运行,出现故障时不影响其他设备,含有丰富的外界通信接口如:RS232、USB、IP接口等;
系统可随时通过USB、COM接口和IP接口进行升级,不影响系统的运行。
在控制上,可采用多种控制方式,进行各种调光灯和非调光灯的控制,负载功率强大。可点对点控制、场景控制、遥控、感应控制、触摸屏控制中心、远程网络、电话、PDA等多种控制方式,具有区控、组控、总控、定时、延时、条件判断等多种功能;
产品外观简洁精美,近百种颜色和材质的豪华面板可选,与高贵典雅的室内空间融为一体,浑然天成;
方案设计说明

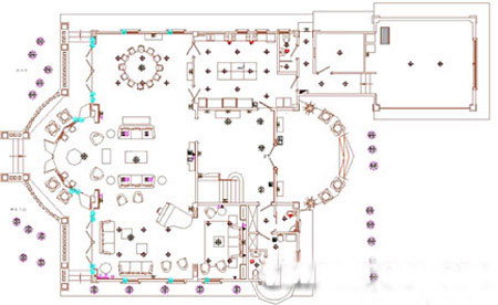
一层平面灯光布置图

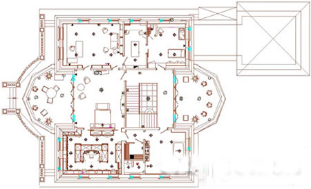
二层平面灯光布置图

三层平面灯光布置图
走进别墅,恍如进入了富丽堂皇的梦境,手指触及轻触控制器激活“欢迎”场景,客厅音乐轻轻响起,灯光由暗变亮自动调节到80%,窗帘轻轻打开,温度调节到设定温度,这是智能照明系统场景控制的应用。在这里先进科技与生活进行了完美的结合,完全体会科技带来的舒适、安全、便利、节能、环保的享受。本项目系统设备采用星形和串形两种连接方式,所有设备通过2芯双绞线连接,系统结构原理图如下:

系统结构原理图
点对点控制:采用智能数字控制器,通过控制器中1个按键控制1路灯光,可单独对灯光进行开光,对调光灯进行0-100%亮度调节,调光灯开启右暗到亮,关闭由亮慢慢变暗,减少对眼睛的刺激,特别适合老人房和小孩房的使用,同时也增加了居家的舒适性。可设置多个控制器控制同一路灯光达到双控功能,面板直观,操作简单。如通过客厅墙面控制器1个按键单独开关客厅吊灯,卧室入口与床头墙面控制器控制同一路灯带,具有双控功能。

灯光控制面板
区域控制:通过控制器上的1个按键控制一个区域所有的灯光,如通过出口处一个按键控制花园里所有灯光,作为一个区域来管理。
分组控制:通过控制器1个按键控制1组灯光,在走廊灯光控制中有应用,下楼后通过组控按键可以打开向左走或向右走方向灯光。
总控:通过控制器1个按键控制整栋别墅的所有智能家居设备的开关,安装于隐蔽处防止误操作,本项目安装于大门背后墙面,方便离家时使用。
场景控制:通过场景控制器控制室内灯光场景效果,可单独控制灯光效果,也可结合背景音乐、温度、窗帘等其他智能家居设备进行整体联动,可记忆灯光亮度、音乐声音大小、温度值、窗帘开合幅度等所有效果,场景记忆断电不丢失,安装于各个功能房间内。如设定晚餐场景、舒适场景、电视场景、聚会场景等,卧室床头起夜模式可打开和关闭1路室内调光灯、卫生间走廊灯和卫生间灯,方便夜晚使用。也可作为全关功能,控制一层或整栋楼所有设备的开关。

触摸屏控制:客厅采用10”触摸屏、家庭厅采用3.5”触摸屏,主卧室安装有一个15”触摸屏,休闲厅采用一个无线触摸屏。通过触摸屏可实现点对点控制、组控、区控、总控、场景控制功能,可控制所有智能家居设备,对灯光进行定时延时开关,在门厅和庭院灯进行应用,并具有闹钟功能,如早上7:00打开指定卧室灯光和其他设备,可设定循环时间,周一至周五7:00,周末调至7:30进行相应操作。触摸屏中可控制各层灯光设备,如在一楼控制二楼和三楼灯光设备的关闭,方便居家时灯光的管理,并可根据需要选择控制的区域和设备。用户根据需求可自定义灯光图标、和其他设备图标,图标直观地对应相应的设备,并即时、准确反映出被控的各种设备的工作状态。所有触摸屏均升级为中文操作界面,15”触摸屏可将房间实际图片导入,图标位置可自由移动到实际控制对象的位置,点击灯处图标,对应位置的灯点亮,图标上显示工作状态和亮度状态,通过图上指示通道入口箭头光标进入下一个房间或区域的图片控制界面,如下图所示:

触摸屏控制图标

15”触摸屏控制界面(可升级成中文版)
红外遥控控制:通过红外遥控器和安装在墙面上的红外接收器控制室内灯光效果,可控制场景模式,场景记忆断电不丢失,也可单独控制灯光的开光和亮度调节。安装于客厅、餐厅、卧室等功能房内。
人体感应控制:吸顶或墙面安装,自动探测人体红外感应,并根据光线亮度判断开灯,开灯后延时1分钟关闭灯光,延时时间可调,探测角度和灵敏度也可调节,主要安装在走廊和楼梯处。
高级条件控制:通过MH200控制器,可对任何一个灯光回路或智能家居设备的动作设定多个条件,可储存300条带多个条件命令,如设定晚上24:00-06:00时间段,当卧室卫生间灯未关闭时,卧室灯光自动启动。
网络控制:通过网关F453AV,可以在互联网上访问进入智能家居控制系统网站,输入用户名和密码即可控制所有的智能家居系统,控制灯光的开关和调光,区控、组控、总控等多种方式,可部分选择性地控制也可全部控制,室内使用无线路由访问。
电话控制:通过电话控制模块,输入用户密码后,根据语音提示选择控制所有的智能家居系统,可实现灯光的开关和调光,区控、组控、总控等多种方式,方便用户外出时简单方便关闭家里的设备,提供无网络时的多种远程控制方式,可部分选择性地控制也可全部控制。
项目中每层配备有一个弱电箱,楼层与楼层之间只需要一条2芯双绞线,极大地减少了布线费用。系统不需要任何的集成,产品采用模块化的设计,每个设备都可以独立工作,并具有独立的对外接口,可以随时进行更新升级成最新版本。系统采用统一的通讯协议,使用2芯双绞线,可以随时增加设备,扩展功能,而无需另外布线。Bticino智能家居控制系统为业主提供了优质、高效、舒适、安全、节能的生活空间,带来的是一种全新的生活享受。

微信扫描二维码,关注公众号。